Programme : COMMERCES & SERVICES : LE SITE DE L’ÉTOILE
TINQUEUX
- Superficie totale :
1207m2 - Nombre de logements :
0 - Qualité Architecturale
- Terrasses, Balcons
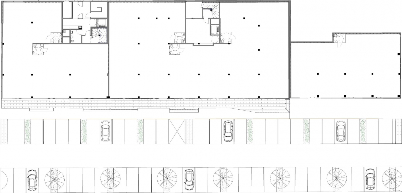
- Places de parking :
60 - Nombre de cellules :
7 - Parkings
- Nombre de logements :
7 - Disponibilité :
1er semestre 2024
CRÉATION DE COMMERCES EN PIEDS D’IMMEUBLE – TINQUEUX (MARNE 51)
LIVRAISON PROCHE : NOVEMBRE 2023
- 7 cellules commerciales à louer
- De 100 à 300 m² (superficie modulable)
- Parking : 60 places
- Livraison prévisionnelle : novembre 2023
- Prix : nous consulter
PROGRAMMATION : ensemble immobilier de 151 logements et + 1 200 m² commerces/services.
ACTIVITÉS RECHERCHÉES : équipement de la maison, équipement de la personne, services, culture, santé, beauté & bien-être etc.
ZONE DE CHALANDISE : 315 000 Habitants à 30 min (Grand Reims). Reims, 12ème Ville de France et Tinqueux, 2ème Ville du Grand Reims
AXES ROUTIERS : Route de Soissons avec +38 000 Passages Véhicules / jour*. Un des plus grands axes routiers en direction du centre-ville de Reims.
UN EMPLACEMENT STRATÉGIQUE ET TRÈS ATTRACTIF DANS UN QUARTIER EN DEVENIR :
- Très belle visibilité avec un flux routier important : une des plus importantes entrées de ville sur la contre-allée de la route de Soissons.
- Un véritable pôle d’attractivité : fort dynamisme des zones commerciales adjacentes avec la locomotive GRAND FRAIS.
- Un environnement commercial attractif répondant à toutes les attentes et besoins des habitants.
- Site de l’Étoile : une nouvelle identité urbaine et commerciale, à proximité d’une vraie vie de quartier.
- Une architecture futuriste mêlant modernité & fonctionnalité vecteur d’images pour les enseignes.
- Un quartier en devenir : un mixte entre habitation et commerces créant un véritable lieu de vie.
Un projet qualitatif, garant de l'image de votre futur commerce, dans un quartier en devenir !
Contactez-nous pour plus de renseignements au 07.66.54.82.65 et convenir d'un rendez-vous en nos bureaux.
*Source : SANEF 2019
cette annonce à un ami
Veuillez réessayer à nouveau
















